Детальний опис об`єкта №7493:
Продається стильна 2-кімнатна квартира в р-ні ТРЦ «Dnipro Plaza,
з ремонтом та меблями на комфортному 2 поверсі 5-ти поверхового будинку.
Квартира світла, затишна та повністю готова до проживання. Виконаний сучасний ремонт у нейтральних тонах, що створює відчуття простору та комфорту.
Планування продумане:
- окрема спальня з місткою шафою та робочою зоною, величезне ліжко
- простора, стильна вітальня з зоною відпочинку ( комфортний диван, телевізор, стіл, комод)
- сучасна кухня з вбудованою технікою та обідньою зоною (двокамерний холодильник, мікрохвильовка, газова варочна поверхня, духова шафа)
- санвузол- сумісний ( пральна машина, сушильна машина для білизни, бойлер, душова кабіна)
-засклений балкон
-вмісткий коридор із шафами купе.
У квартирі залишаються меблі та техніка — можна одразу заїжджати без додаткових витрат.
Будинок розташований у зручному районі: поруч магазини, школи, садочки, транспорт.
Комфортний 2 поверх — ідеальний варіант як для життя, так і для інвестиції.
Телефонуйте — із задоволенням покажемо!
Комісія АН 2%
Заїжджай і живи: 2 кім.кв. з ІДЕАЛЬНИМ ремонтом біля ТРЦ Дніпро Плаза
| Тип: | 2 к.кв. |
| Район: | Митниця - Дніпро-Плаза |
| Адреса: | Нижня Горова 5, |
| Поверх: | 2 |
| Поверховість: | 5 |
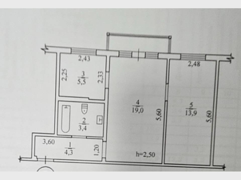
| Загальна площа: | 46 м2 |
| Площа кухні: | 6 м2 |
| Стан об`єкта: | З ремонтом |
| Материал стен: | панель |
| Планіровка: | Суміщені |
| Санвузел: | Cуміщений |
| Балкон: | 1 |
| Ціна: | 2 573 000 Грн. |
| Еквівалент: | 62 000 $ |
| Еквівалент: | 57 040 € |
| Переглядів: | 78 |
| Дата публікації: | 2026-03-26 14:45:57 |
Цікавлять деталі?
Введіть Вашe им`я:
:
Введіть Ваш телефон:
:

